Anchor bolts are threaded fasteners used to attach structural and non-structural elements to concrete or masonry. They are designed to transfer loads, including tension and shear forces, and are crucial for securing objects like steel plates, machinery, and entire building structures to their foundations. Anchor bolts come in various types, such as L-bolts and wedge anchors, and are specified by ASTM standards for use in different applications.
Embedding: The bolt is embedded into the concrete or masonry, often with a bent end or an expansion mechanism to provide a secure grip.
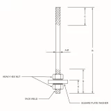
Attachment: The bolt is then secured with a nut and washer, which are tightened to a specific torque to hold the connected component firmly.
Load Transfer: This connection allows the bolt to transfer tension, compression, and shear forces between the attached element and the base material, ensuring stability.
Construction: Connecting steel columns, beams, and other structural elements to concrete foundations.
Machinery: Securing heavy machinery in industrial plants, chemical facilities, and power generation sites.
Infrastructure: Anchoring various components for rail, aviation, and other infrastructure projects.
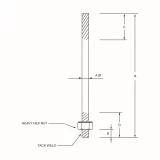
Bent Anchor Bolts: Often L-shaped, they are frequently used to anchor steel columns to foundations.
Wedge Anchors: Expand against the drill hole to create a secure connection.
Sleeve Anchors: Use a sleeve to expand and grip the sides of a pre-drilled hole, common in masonry.
Head-Stud Anchors: Used for heavy-duty connections, sometimes in conjunction with other components like column shoes.
F1554 is the ASTM International specification for anchor bolts.
The ASTM specification for anchor bolts is F1554. This covers anchor bolts designed to anchor structural supports to concrete foundations. F1554 anchor bolts can take the form of either headed bolts, straight rods, or bent anchor bolts.





We can also manufacture J-bolts and other bent anchor bolts.
High-density polyethylene sleeves used as in-place forms to provide a grout pocket around an anchor bolt or to form a pocket into which an bolt may be grouted. Allows anchor bolts to be installed correctly, avoiding the risk of having to remove misaligned bolts. Useful where metal pipe would be objectionable because of rusting. Wilson anchor bolt sleeves are manufactured in the United States.
| ANCHOR SLEEVE SIZES | |||||||
| Bolt Diameter | Sleeve Size | Bolt Diameter | Sleeve Size | Bolt Diameter | Sleeve Size | ||
| 1/2″ | 2″ x 5″ | 1-1/8″ | 3″ x 10″ | 2-1/4″ | 4″ x 18″ | ||
| 3/4″ | 2″ x 5″ | 1-1/4″ | 3″ x 10″ | 2-1/2″ | 6″ x 24″ | ||
| 5/8″ | 2″ x 7″ | 1-3/8″ | 4″ x 15″ | 3″ | 6″ x 24″ | ||
| 3/4″ | 2″ x 7″ | 1-1/2″ | 4″ x 15″ | 4″ | 6″ x 24″ | ||
| 7/8″ | 2″ x 7″ | 1-3/4″ | 4″ x 15″ | 5″ | 6″ x 24″ | ||
| 1″ | 3″ x 10″ | 2″ | 4″ x 18″ | ||||
Factory No.3301, POBox No. 7408 Dammam 32435, KSA
© Copyright by Precision Metal Industry Company | All Right Reserved.